住宅関連の各種サポート業務・地域型住宅ブランド化事業のご相談はTAS企画【一級建築事務所】へ
HOME
>
開発支援
> 商品開発実例
商品開発実例
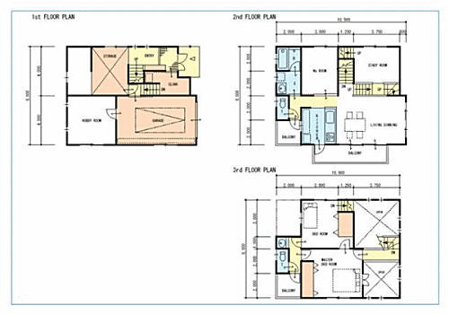
某建材メーカーにて新規開発した商品 「 Two Half (ツーハーフ) 」 をご紹介します。
2階建てでも、 3階建てでもない、 新空間をコンセプトに床下空間 ・ スキップフロア ・ ロフト を積極的に利用した住宅になっております。
外 観
リビング上 吹き抜け
スキップ 中間部
階段 吹き抜け
車 庫
車庫奥 床下空間
平面図
立面図
ご希望の方は、
お問い合わせフォーム
にてご連絡ください。
HOME
申請サポート
開発支援
講習支援
会社概要
お問い合わせ
LINK
個人情報保護方針
サイトマップ